摘 要:
在光储一体化快速发展的背景下,基于直流耦合技术的光储一体机作为新兴能源解决方案,正逐步占据市场主导地位。该系统具备高效率、灵活性强、安装便捷等优势,广泛应用于各类用电场景。通过一次能量转换即可实现光伏对储能电池的高效充电,显著提升整体能效并降低损耗。其高度集成化设计不仅减少了硬件投入和施工复杂度,还实现了能源的精准调度与快速响应,充分满足用户对系统可靠性与操作便利性的双重需求,已成为众多新建能源项目的首选配置。本文结合行业发展趋势、先进技术架构及典型产品部署,提出一套完整的光储一体机能量管理方案,助力推动清洁能源的智能化应用。
关键词:
光储一体机、直流耦合、并离网切换、能量管理
1、背景概述
在全球能源结构转型加速与电力需求持续上升的双重驱动下,离网或电网薄弱区域频繁面临停电、电压波动等问题,严重影响当地经济发展与居民生活质量。光储一体机凭借其安全稳定、部署灵活等特点,成为解决供电难题的关键技术路径。然而,在实际运行中仍存在若干亟待优化的问题:
- (1)监测能力不足:缺乏对电池特性的深度挖掘,状态监测维度有限;同时对光伏发电过程缺少有效的数据采集与分析手段。
- (2)运行策略单一:在并网状态下,储能系统未能依据电价波动、负荷变化等因素智能调整运行模式(如峰谷套利、需量控制、防逆流、动态扩容等),导致系统经济性未达最优。
- (3)远程运维支持薄弱:监控数据分散管理,缺乏系统性规划,难以形成全过程的数据闭环,影响故障诊断与维护决策的科学性。
- (4)协同控制缺失:在需要进行并离网切换的应用场景中,PCS、光伏组件与储能单元之间缺乏统一协调机制,无法实现精细化功率分配与最优联动,造成整体效率下降。
- (5)安全保障机制不健全:在直流耦合接入方式下,针对BMS过流、SOC过充、通信中断等关键安全状态的识别与保护措施尚不完善,存在潜在运行风险。
2、系统架构与项目需求
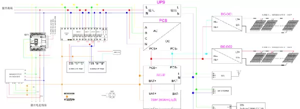
本项目采用直流耦合拓扑结构:光伏阵列经DC/DC变换器接入直流母线,储能系统通过高压箱同样接入同一母线,再由PCS(变流器)将直流电转换为交流电接入交流侧;市电则通过断路器接入系统。系统原理如图1所示。
项目要求配套建设一套能量管理系统(EMS),用于实现光储系统的综合能量调度与设备协同控制,并集成柜内消防、水浸检测、空调等辅助设施的监控功能,完成动力环境一体化管控。
控制逻辑设计如下:
- 并网模式:负载供电优先级为 光伏 > 市电 > 储能。储能主要用于离网备用,在完成备电任务后,光伏电力优先经PCS供给本地负载,系统具备防逆流功能,最大限度提高自发自用率,减少弃光现象。
- 离网模式:供电优先级调整为 光伏 > 储能。通过光储协同控制,确保不间断供电,保障工业生产连续运行。
3、技术解决方案
为满足上述功能需求,柜体内配置Acrel-2000ES储能能量管理系统。该系统集成了全面的监控与管理功能,覆盖PCS、BMS、电表、消防装置、温控设备等关键部件,实现数据采集、处理、存储、查询分析、可视化展示、报警管理及统计报表生成等多项能力。
在高级应用层面,系统支持多种能量调度策略,包括计划曲线执行、削峰填谷、需量控制、备用电源管理等功能。通过对电池组性能的实时监测与历史数据分析,系统可智能制定充放电策略,优化电池使用工况,延长使用寿命。
此外,系统配备ARTU-100遥信遥控模块以扩展控制接口,并通过ANet-2E4SM通讯管理机实现数据上传至云平台,便于运营商对多个站点进行集中监控与远程管理。
4、实施效果与运行表现
该光储一体机主要服务于非洲等电网稳定性较差的地区,核心控制逻辑如下:
- 当检测到市电正常时,系统自动闭合断路器,接入电网。此时光储系统进入离网备电准备状态,储能SOC维持在90%以上。若SOC较高(如>80%)或电压接近上限,系统停止大功率充电,转为分阶段涓流补电。同时,在并网备电期间逐步提升光伏功率限值,直至达到最大发电能力,避免因光伏发电波动引发充电过流问题。备电完成后,光伏输出经PCS直供负载,且确保不向电网倒送电(防逆流)。
- 一旦市电中断,系统迅速断开断路器,切断与电网连接,PCS切换至离网模式运行。根据当前储能SOC水平合理调节光伏出力,在SOC过低时启动保护机制,防止电池过度放电,从而保障供电连续性与系统安全性,有效支撑工厂连续生产,提升经济效益。
图5 项目现场图
图6 PCS监测主界面
图7 BMS监测主界面
图8 储能能量管理系统主界面图
5、结语
光储一体机以其高效的能量转换能力、灵活的运行模式和可靠的供电保障,正在成为全球分布式能源系统的重要组成部分。通过引入先进的能量管理系统,不仅解决了传统系统中存在的监控盲区、运行僵化、协同不足等问题,更实现了能源的智能化调度与全生命周期管理。未来,随着技术不断迭代升级,光储融合方案将在更多应用场景中发挥关键作用,助力构建更加绿色、智能、韧性的新型电力体系。
在海外市场,光储一体机逐渐成为新建能源项目的首选方案,受到行业的广泛关注。依托先进的技术实力以及在能源管理领域积累的丰富经验,安科瑞已与多家储能核心设备制造商建立深度合作关系,专注于为客户提供具备高可靠性与智能化特性的能量管理系统。
该系统集成光伏、储能及市电的多能源协同控制功能,通过智慧调度实现能源结构的优化配置,提升电力使用的效率与经济性。同时,系统可根据电网实时状态,智能切换并网与离网运行模式,显著增强供电的稳定性与连续性,特别适用于电网覆盖不足或运行不稳定的地区。
借助本地充足的太阳能资源,光储一体机搭载储能能量管理系统(EMS),构建起低碳、绿色的清洁能源供电体系,有力支撑碳减排目标的推进。通过高效的能源利用方式,不仅降低了整体用电成本,也进一步提升了系统的综合运行效益。


雷达卡


京公网安备 11010802022788号







